









Vetro 555
Tilanjakaja kääntyvillä pariovilla joista toisessa kiinteä osa
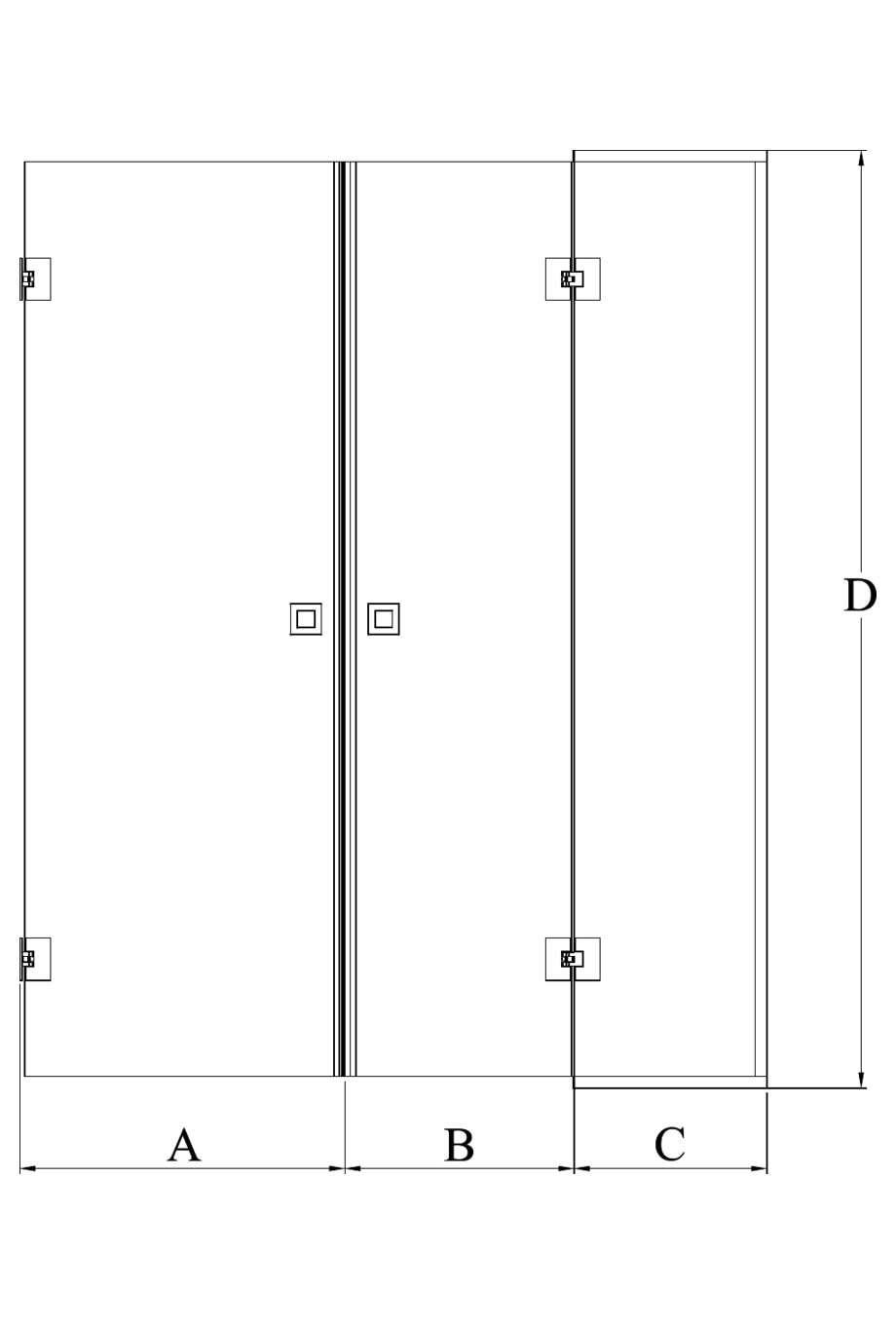
Tilanjakaja koostuu kääntyvästä ovesta ja kiinteästä seinästä johon on saranoitu toinen kääntyvä ovi. Tuote soveltuu hyvin suihkusyvennykseen, jonka vieressä on kaluste. Kiinteä seinä ja oviaukko voidaan mitoittaa niin, että kiinteä suojaa kalustetta ja oviaukko on vapaaksi jäävän kulkutilan levyinen. Ovet voidaan mitoittaa symmetrisesti tai niin, että ovet ovat eri kokoiset. Kun suihku ei ole käytössä, ovet voidaan kääntää rakennuksen seinien suuntaisesti.
Ovet kääntyvät molempiin suuntiin 90 astetta ja varustetaan säädettävillä keskityksillä. Keskitys pyrkii palauttamaan ovet takaisin auki ja kiinni -asentoihin. Magneettitiivistepari pitää ovet tiiviisti suljettuna suihkun aikana.
Tuotteelle on saatavissa asennuspalvelu Suomen suurimmissa kaupungeissa. Palvelun hinta on alkaen 390.00€ (sis alv.). Asennuksen voi tilata asiakaspalvelustamme.
20 Arkipäivää
20 vuoden takuu
Tuotteessa käytettävät helat valmistetaan messinkiseoksesta. Pintakäsittelyvaihtoehtoina ovat Kromi, Harjattu, Messinki, Valkoinen (RAL 9016), Musta (RAL 9005), Sand (RAL 1019), Mocha (RAL 8025) ja Cocoa (RAL 8019). Kromatut ja Messingin väriset helat ovat kiiltäviä, harjatut helat on harjattu mattapintaisiksi, valkoinen, musta, sand, mocha ja cocoa väriset helat ovat maalattuja.
Tuote valmistetaan 8 mm -vahvuisesta karkaistusta turvalasista (EN 12150). Lasivaihtoehdot ovat Kirkas, savu, pronssi, satiini, super kirkas sekä musta. Satiinilasin toinen puoli on etsattu samettisen tuntuiseksi ja toinen puoli on sileä. Satiinilasista tuotetta valittaessa on syytä huomioida, että lasin etsattu pinta on arka naarmuille ja tahroille. Musta lasi on läpinäkyvämpi kirkkaassa valossa, ja läpinäkymättömämpi pimeässä tilassa. Superkirkkaat vaihtoehdot valmistetaan rautavapaasta lasista, lasit eivät näin ollen viherrä, kuten lasi tyypillisesti tekee. Satiinilasin tuotekuvassa on käytetty superkirkasta satiinilasia, josta saa tarvittaessa tarjouksen asiakaspalvleun kautta. Kaikki lasit voidaan käsitellä tehtaalla Cranith-kalkinestopinnoitteella. Pinnoitteen avulla lasi pysyy helpommin puhtaana.
Suihkuseinä valmistetaan mittojen mukaan.
Tuotekoko
Valittu tuote voidaan asentaa aukkoon, jonka kokonaisleveys L1 on 2100mm ja kokonaiskorkeus L2 1965mm.:

Tuotteessa on vakiovarusteena 33 mm korkea laahustiiviste. Lisävarusteena on saatavilla 50 mm korkea laahustiiviste suihkutiloihin, joissa lattiakaadot ovat normaalia suuremmat. Laahustiivisteen pituus on 1000 mm ja se katkaistaan sopivan mittaiseksi paikan päällä. Tuotteen vedenpitoa voidaan parantaa asentamalla oven alle kynnysprofiili. Kynnysprofiili sahataan paikan päällä sopivaan mittaan ja asennetaan lattiaan liimaamalla. Muotoillun kynnyksen korkeus on 10 mm ja leveys 16 mm.
Valitse vedin
Tuote
Tuotekoodi
Hinta
1
Vetro 555
Tuotekoodi
555-21-000
Hinta
0.00 €
2
Tilanjakajan käntyvä ovi
Kromattu/Kirkas/A=787 x 1965
Tuotekoodi
512 21 0000
Hinta
570.00 €
3
Tilanjakajan kääntyvä ovi
Kromattu/Kirkas/B=487 x 2000
Tuotekoodi
517 21 1000
Hinta
625.00 €
4
Tilanjakajan kiinteä seinä
Kromattu/Kirkas/C=800 x 2000
Tuotekoodi
517 21 0000
Hinta
625.00 €
5
Magneettitiivistepari
Tuotekoodi
915 2L 0000
Hinta
42.00 €
6
Pyöreä läpivedin
Tuotekoodi
Y45 2L MMMM
Hinta
27.00 €
7
Pyöreä läpivedin
Tuotekoodi
Y45 2L MMMM
Hinta
27.00 €
8
Spring sale -25% 14.4.-17.5.2025
Tuotekoodi
DISCOUNT
Hinta
-479.00 €
9
YHTEENSÄ
Tuotekoodi
Hinta
1437.00 €
Valittu tuote voidaan asentaa aukkoon, jonka kokonaisleveys L1 on 2100mm ja kokonaiskorkeus L2 1965mm.:
| EAN: |
|---|



