Vetro 533 (511+514)

Tilanjakaja kiinteällä seinällä ja kääntyvällä ovella jossa kiinteä osa

Tilanjakaja koostuu kahdesta kiinteästä seinästä, joista toiseen on saranoitu kääntyvä ovi. Tuote soveltuu hyvin suihkusyvennykseen, jonka ulkopuolella on kalusteita molemmin puolin. Kiinteät seinät voidaan mitoittaa kalusteiden syvyyksien mukaan niin, että avattaessa ovi ei törmää kalusteisiin.

Ovi aukeaa ulospäin 90 astetta ja varustetaan säädettävällä keskityksellä. Keskitys pyrkii palauttamaan oven takaisin auki ja kiinni -asentoihin. Magneettitiivistepari pitää oven tiiviisti suljettuna suihkun aikana.

Kiinteät seinät kiinnitetään sivuista rakennuksen seiniin seinäkiinnitysheloilla ja tuetaan yläreunoista kulmaan asennettavalla vinotuella sekä alareunasta lattiaan liimattavalla helalla. Kiinteiden seinien lasien ja lattian väliin jää 25mm korkea rako. Lasin ja lattian väliin voidaan asentaa tiivistesokkelit (vakiovaruste), jolloin vesi ei pääse kulkemaan lasien alta. Ovilasin alareunaan voidaan asentaa laahustiiviste (vakiovaruste), joka rajoittaa veden kulkua. Asennusohje
Tuotteelle on saatavissa asennuspalvelu Suomen suurimmissa kaupungeissa. Palvelun hinta on alkaen 390.00€ (sis alv.). Asennuksen voi tilata asiakaspalvelustamme.

Icon

7 Arkipäivää

Icon

20 vuoden takuu

Tuotteessa käytettävät helat valmistetaan messinkiseoksesta. Pintakäsittelyvaihtoehtoina ovat Kromi, Harjattu, Messinki, Valkoinen (RAL 9016), Musta (RAL 9005), Sand (RAL 1019), Mocha (RAL 8025) ja Cocoa (RAL 8019). Kromatut ja Messingin väriset helat ovat kiiltäviä, harjatut helat on harjattu mattapintaisiksi, valkoinen, musta, sand, mocha ja cocoa väriset helat ovat maalattuja.

Tuote valmistetaan 8 mm -vahvuisesta karkaistusta turvalasista (EN 12150). Lasivaihtoehdot ovat Kirkas, savu, pronssi, satiini, super kirkas sekä musta. Satiinilasin toinen puoli on etsattu samettisen tuntuiseksi ja toinen puoli on sileä. Satiinilasista tuotetta valittaessa on syytä huomioida, että lasin etsattu pinta on arka naarmuille ja tahroille. Musta lasi on läpinäkyvämpi kirkkaassa valossa, ja läpinäkymättömämpi pimeässä tilassa. Superkirkkaat vaihtoehdot valmistetaan rautavapaasta lasista, lasit eivät näin ollen viherrä, kuten lasi tyypillisesti tekee. Satiinilasin tuotekuvassa on käytetty superkirkasta satiinilasia, josta saa tarvittaessa tarjouksen asiakaspalvleun kautta. Kaikki lasit voidaan käsitellä tehtaalla Cranith-kalkinestopinnoitteella. Pinnoitteen avulla lasi pysyy helpommin puhtaana.

Tilanjakajan koko voidaan valita vakiomitoista tai se voidaan valmistaa erikoismitoin.

Tuotekoko

Tilanjakajan kiinteä seinä (A)

X

Tilanjakajan kääntyvä ovi (B)

X

Tilanjakajan kiinteä seinä (C)

X

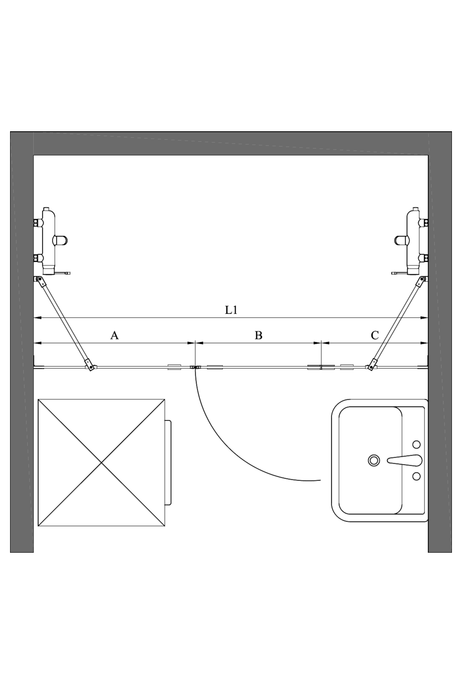
Valittu yhdistelmä voidaan asentaa aukkoon (L1), jonka leveys on 1085mm.
Tuotteessa ei ole leveyden säätöä jolloin se edellyttää mahdollisimman suoria seinäasennuspintoja. Huom! Tilanjakajan osat voidaan asentaa myös toisin päin kuin mitä pohjakuvassa on esitetty.:

Image

Tuotteessa on vakiovarusteena 28mm korkea laahustiiviste. Lisävarusteena on saatavilla 50mm korkea laahustiiviste suihkutiloihin, joissa lattiakaadot ovat normaalia suuremmat. Laahustiivisteen pituus on 1000mm ja se katkaistaan sopivan mittaiseksi paikan päällä. Tuotteen vedenpitoa voidaan parantaa asentamalla oven alle kynnysprofiili. Kynnysprofiili sahataan paikan päällä sopivaan mittaan ja asennetaan lattiaan liimaamalla. Muotoillun kynnyksen korkeus on 10mm ja leveys 16mm.Korkopala voidaan kiinnittää lattiahelan pohjaan, jolloin sitä saadaan nostettua 10mm.

Valitse vedin

Tuote

Tuotekoodi

Hinta

1

Vetro 533 (511+514)

Tuotekoodi

533-21-442

Hinta

0.00 €

2

Tilanjakajan kiinteä seinä
Kromattu/Kirkas/A=391 x 2000

Tuotekoodi

511 21 0038

Hinta

470.00 €

3

Tilanjakajan kääntyvä ovi
Kromattu/Kirkas/B=389 x 2000

Tuotekoodi

514 21 1038

Hinta

390.00 €

4

Tilanjakajan kiinteä seinä
Kromattu/Kirkas/C=305 x 2000

Tuotekoodi

514 21 0030

Hinta

390.00 €

5

Magneettitiivistepari

Tuotekoodi

915 2L 0004

Hinta

42.00 €

6

Pyöreä läpivedin

Tuotekoodi

Y45 2L MMMM

Hinta

27.00 €

7

Spring sale -25% 14.4.-17.5.2025

Tuotekoodi

DISCOUNT

Hinta

-329.75 €

8

YHTEENSÄ

Tuotekoodi

Hinta

989.25 €

Valittu yhdistelmä voidaan asentaa aukkoon (L1), jonka leveys on 1085mm.
Tuotteessa ei ole leveyden säätöä jolloin se edellyttää mahdollisimman suoria seinäasennuspintoja. Huom! Tilanjakajan osat voidaan asentaa myös toisin päin kuin mitä pohjakuvassa on esitetty.:

EAN: