Bläk 806 Shanghai
Pariovi
Ovet aukeavat ulospäin 90 astetta ja varustetaan säädettävällä keskityksellä. Keskitys pyrkii palauttamaan oven takaisin auki ja kiinni -asentoihin.
Ovipaneelit asennetaan rakennuksen seinään seinäkiinnityslistoin lasiseinän
molemmin puolin.
Paneelit kiinnitetään itseporautuvin ruuvein.
Lasiseinän yläosa on kiinnitetty molemmilta puolilta paneeliin ja kattoon
asennetuilla kiinnityslistoilla.
Magneettitiivisteet asennetaan kumpaankin ovipaneeliin, jotta ovi pysyy
tiukasti kiinni.
Tuotteelle on saatavissa asennuspalvelu Suomen suurimmissa kaupungeissa. Palvelun hinta on alkaen 350.00€ (sis alv.). Asennuksen voi tilata asiakaspalvelustamme.
17 Arkipäivää
20 vuoden takuu
Valkoiset (RAL 9016), mustat (RAL 9005), Sand (RAL 1019), Mocha (RAL 8025) ja Cocoa (RAL 8019) pintakäsittelyvaihtoehdot profiileille ovat polttomaalattuja. Tuotteessa käytettävät helat ovat maalattua messinkiseosta.
Tuote valmistetaan 6mm vahvuisesta karkaistusta turvalasista (EN 12150). Turvalasi voidaan käsitellä tehtaalla Cranith -kalkinestopinnoitteella. Pinnoitteen avulla lasi pysyy helpommin puhtaana. Kirkas, savu, pronssi ja superkirkas ovat sileäpintaisia ja läpinäkyviä laseja. Reeded, Satiini, Harmaasatiini, Pronssisatiini ja Superkirkas satiini eivät ole täysin läpinäkyviä, yksityiskohdat eivät erotu lasin läpi. Reeded on toiselta puolelta kuvioitu ja toiselta puolelta sileä. Satiinilasien toinen puoli on etsattu samettisen tuntuiseksi ja toinen puoli on sileä. Satiinilasista tuotetta valittaessa on syytä huomioida, että lasin etsattu pinta on arka naarmuille ja tahroille.
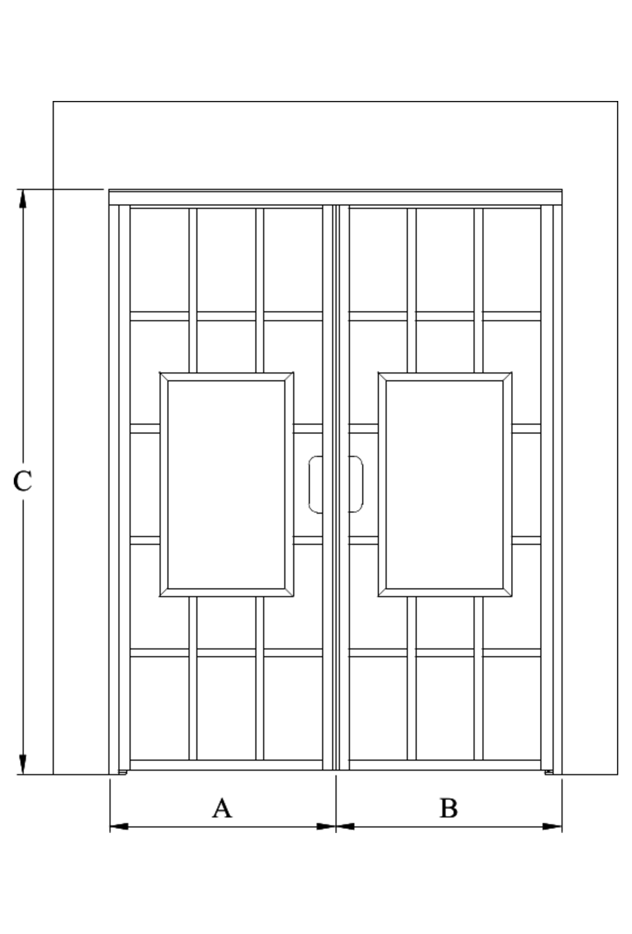
Tuote valmistetaan aina mittojen mukaan. Koon valinnassa ilmoita asennusaukon leveys ja asennusaukon korkeus. Ilmoitettujen mittojen tulisi olla valmiin aukon pienimmät mitat. Leveyden koostuessa useammasta paneelista, tulisi yhteenlasketun ilmoitetun leveyden olla sama kuin valmiin aukon leveys, sen kapeimmasta kohdasta. Vapaa kulkuaukko on asennuksesta riippuen vähintään 60mm pienempi kuin oven kokonaismitta.
Tuotekoko
Valittu tuote voidaan asentaa aukkoon, jonka kokonaisleveys L1 on 1000mm ja kokonaiskorkeus L2 2000mm.:

Tuote
Tuotekoodi
Hinta
1
Bläk 806 Shanghai
Tuotekoodi
806-61-00
Hinta
0.00 €
2
Ovi
Valkoinen/Kirkas=485 x 2000
Tuotekoodi
738 61 0000
Hinta
460.00 €
3
Ovi
Valkoinen/Kirkas=485 x 2000
Tuotekoodi
738 61 0000
Hinta
460.00 €
4
Leveä kattolista
Valkoinen/Kirkas=10 x 1000
Tuotekoodi
704 61 0000
Hinta
0.00 €
5
Huolto-ohje
=
Tuotekoodi
059 RL MMMM
Hinta
0.00 €
6
Magneettilukitus
Tuotekoodi
724 6L 0000
Hinta
0.00 €
7
Shanghai-kehys
Tuotekoodi
741 6L 0000
Hinta
800.00 €
8
Shanghai-kehys
Tuotekoodi
741 6L 0000
Hinta
800.00 €
9
Spring sale -25% 14.4.-17.5.2025
Tuotekoodi
DISCOUNT
Hinta
-630.00 €
10
YHTEENSÄ
Tuotekoodi
Hinta
1890.00 €
Valittu tuote voidaan asentaa aukkoon, jonka kokonaisleveys L1 on 1000mm ja kokonaiskorkeus L2 2000mm.:
| EAN: |
|---|









