

















Similar Products
Blak_bottom_step.png
Blak_handle.jpg
Blak_shower_rod.png
Tuning leg.jpg
Floor mounting.jpg
Blak_door_hinge_top.jpg
Door seal.jpg
Blak_grid_profile.png
Blak_long_shower_rod.png
Magnet seal.jpg
Blak_profile_cap.jpg
Blak_tuning_leg.png
Fixed_extension_outside.jpg
Fixed_extension_inside.jpg
766.pdf
766.pdf
Bläk 766 Paris
Shower enclosure with a fixed wall and a hinged door with a fixed part
The shower enclosure consists of two fixed walls, into one of which a hinged door has been installed. The product is well-suited for a shower corner, the outside of which has fixtures on both sides. Fixed walls can be measured according to the depth of the fixtures so that when opened, the door does not hit the fixtures.
The door opens 90 degrees to the outside and is equipped with an adjustable centring. The function of the centring is to return the door to the open and closed positions. A magnet seal pair keeps the door tightly closed while showering.
The wall and the door with fixed part panels are mounted to building wall using wall mounting profiles on each side of the enclosure space. The support bar is set up from the top edge of the fixed panel and screwed into the building wall. Bottom seals can be attached to the panels and a step profile can be installed under the door panels to improve water retention. Magnet seals are installed on each of the doorway panels to keep the door tightly closed.
7 Working days
20 year warranty
The white (RAL 9016), black (RAL 9005), Sand (RAL 1019), Mocha (RAL 8025) and Cocoa (RAL 8019) surface treatment options are manufactured by powder coating. The fittings used in the product, are made of painted brass alloy.
The product is manufactured of 6mm thick tempered safety panel (EN 12150). The safety panel can be treated in the factory with Cranith calcification prevention coating. The coating enables the panel to stay clean easier. Clear, Grey, Brown and Superclear are smooth surfaced and transparent panels Reeded, Satin, Brownsatin, Greysatin and Superclear satin panels are not fully transparent, details cannot be made out through the panel. Reeded is textured on one side and smooth on the other side. One side of the satin panels is etched to acquire a velvety feel and the other side is smooth. When choosing a satin panel product, bear in mind that the etched surface of the panel is sensitive to scratches and stains.
The size of the shower corner can be selected from the standard sizes or it can be manufactured based on special dimensions. The wall mountedprofiles have an adjustment tolerance 7mm. The adjustment tolerance may be used for levelling the tilt of the building s walls or for extending the widths of the sides of the shower enclosure in relation to the provided standard dimensions. The widths of one or both sides can be further extended by 34 mm via the extension profile (optional accessory). The extension profile can be grooved, for example, for the inlet of the surface water pipes. The fixed panel is mounted with tuning leg by default which is suitable for tilted floors in the case of even floor the floor mounted option can be selected.
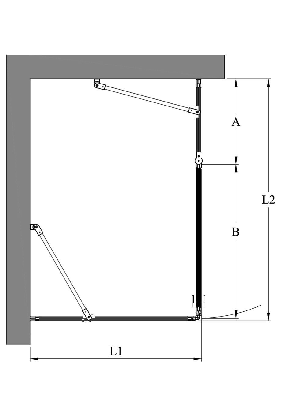
Product size
Taking into account the adjustment ranges, the installation dimensions of the selected combination are:
- Side L1 : 519mm - 526mm
- Side L2 : 617mm - 624mm
Installation dimensions mean the location of the outermost side of the wall mountedprofile on the building wall measured from the corner of the shower area. The width of the side of the wall mountedprofile placed against the building wall is 22mm. The dimensions may deviate from the declared values if the adjustment range must be used to level the tilt of the walls. Note! The parts of the shower enclosure may also be installed in the opposite direction than presented in the layout.:

The product is supplied as standard with a 33 mm high floor seal. The optional accessories are a 50mm high floor seal for shower areas where the floor tilting is higher than normal. The length of the floor seal is 1000mm and it is cut to a suitable length on site. The watertight quality of the product can be improved by installing a shower door threshold under the door. The door threshold is cut into a suitable length on the side and glued to the floor. The height of a shaped threshold is 10mm and its width is 16mm.Fixed panel is mounted with tuning leg by default which is suitable for tilted floors in the case of even floor the floor mounted option can be selected.
Product
Product code
Price
1
Bläk 766 Paris
Product code
766-61-711
Price
0.00 €
2
Shower enclosure fixed screen
White/Transparent/L1=519 x 1950
Product code
711 61 0049
Price
450.00 €
3
Shower enclosure fixed screen
White/Transparent/A=260 x 1950
Product code
714 61 0026
Price
345.00 €
4
Shower enclosure hinged door
White/Transparent/B=357 x 1950
Product code
714 61 1033
Price
345.00 €
5
Paris -frame
Product code
703 6L 0007
Price
200.00 €
6
Paris -frame
Product code
709 RL 0001
Price
200.00 €
7
Magnet seal pair
Product code
705 RL 0001
Price
42.00 €
8
Paris -frame
Product code
709 RL 0001
Price
200.00 €
9
Spring sale -25% 14.4.-17.5.2025
Product code
DISCOUNT
Price
-445.50 €
10
TOTAL
Product code
Price
1336.50 €
Taking into account the adjustment ranges, the installation dimensions of the selected combination are:
- Side L1 : 519mm - 526mm
- Side L2 : 617mm - 624mm
Installation dimensions mean the location of the outermost side of the wall mountedprofile on the building wall measured from the corner of the shower area. The width of the side of the wall mountedprofile placed against the building wall is 22mm. The dimensions may deviate from the declared values if the adjustment range must be used to level the tilt of the walls. Note! The parts of the shower enclosure may also be installed in the opposite direction than presented in the layout.:
| EAN: |
|---|



