







Vetro 526
Shower enclosure with hinged doors with fixed parts
The shower enclosure consists of two fixed walls, into which have been hinged doors have been attached. The product is well-suited for a shower corner on the outside of which are fixtures on both sides. The fixed parts can be dimensioned according to the depth of the fixtures so that when opened, the doors do not hit the fixtures. Doors can be dimensioned symmetrically or so that the doors are of different sizes. When the shower is not in use, the door can be turned in the direction of the building walls.
Doors rotate 90 degrees in both directionsand are equipped with adjustable centring. The centring attempts to return the door back to the open and closed positions. A magnet seal keeps the door tightly closed during showering.
Fixed walls are attached to the wall of the building from the sides by means of wall mountedfittings and supported from the top edge by the braces installed in the corners as well as from the bottom edge by the fitting glued to the floor. Between the panels of the fixed walls and the floor will be a 25mm high gap. Between the panel and the floor may be installed seal (standard part)s , so that water will not be able to flow under the panels. Floor seals (standards equipment) can be installed at the bottom edges of the door panels, which will restrict the flow of water. Installation guide
20 Working days
20 year warranty
The fittings used in the product, like square foot and brace bars, are manufactured of brass alloy. Surface treatment options is chrome plated.
The product is manufactured of 8 mm thick tempered safety panel (EN 12150). Glassoptions are Transparent, grey, brown, satin, super bright and black. One side of the satin glasses is etched to acquire a velvety feel and the other side is smooth. When choosing a satin glass product, bear in mind that the etched surface of the panel is sensitive to scratches and stains. The black glass is slightly see through in heavy light and almost nontransparent if the space is darker. The super bright glasses are manufactured with the iron removed, thus removing most of the green tint that glasses naturally have. Please note, that productpictures of satin glass use super bright satin of which an offer can be calculated via our customer srevice. All glasses can be treated in the factory with a Cranith calcification prevention coating. The coating enables the panel to stay clean easier.
The size of the shower enclosure can be selected from the standard dimensions or it can be manufactured custom dimensions.
Product size
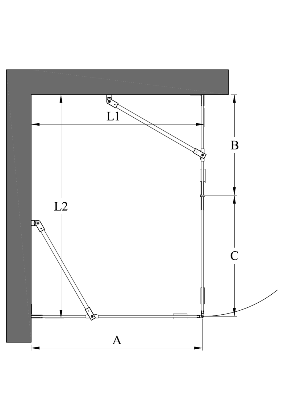
The installation dimensions of the selected combination are:
- Side L1 : 396mm
- Side L2 : 780mm
Installation dimension means the location of the outermost edge of the fitting mounted to the wall on the building wall measured from the corner of the shower area. The product does not include width adjustment options, therefore wall mountedsurfaces should be as straight as possible. Note! The parts of the shower enclosure may also be installed in the opposite direction than presented in the layout.:

The product is supplied as standard with a 28mm high floor seal. The optional accessories are a 50mm high floor seal for shower areas where the floor tilting is higher than normal. The length of the floor seal is 1000mm and it is cut to a suitable length on site. The watertight quality of the product can be improved by installing a step profile under the door. The step profile is cut into a suitable length on the side and glued to the floor. The height of a shaped step profile is 10mm and its width is 16mm. An extension step can be placed under the glass clamp to raise it by 10mm.
Product
Product code
Price
1
Vetro 526
Product code
526-21-400
Price
0.00 €
2
Shower enclosure fixed screen
Chrome/Transparent/A=396 x 2000
Product code
511 21 0038
Price
470.00 €
3
Shower enclosure fixed screen
Chrome/Transparent/B=200 x 1000
Product code
521 21 0000
Price
490.00 €
4
Shower enclosure hinged door
Chrome/Transparent/C=580 x 1000
Product code
521 21 1000
Price
490.00 €
5
Magnet seal pair
Product code
915 2L 0000
Price
42.00 €
6
Spring sale -25% 14.4.-17.5.2025
Product code
DISCOUNT
Price
-373.00 €
7
TOTAL
Product code
Price
1119.00 €
The installation dimensions of the selected combination are:
- Side L1 : 396mm
- Side L2 : 780mm
Installation dimension means the location of the outermost edge of the fitting mounted to the wall on the building wall measured from the corner of the shower area. The product does not include width adjustment options, therefore wall mountedsurfaces should be as straight as possible. Note! The parts of the shower enclosure may also be installed in the opposite direction than presented in the layout.:
| EAN: |
|---|



