










Forma 368
Shower enclosure with a fixed wall and hinged door
Shower enclosure consists of a fixed wall and a hinged door Product is well-suited for a shower corner with fixtures next to it. Fixed wall and door can be dimensioned so that the fixed wall protects the fixtures and the door is of the same width as the available space.
The door opens 90 degrees to the outside and is equipped with an adjustable centring. The function of the centring is to return the door to the open and closed positions. A pair of magnets keeps the door tightly closed while showering.
Shower wall and door are attached to the walls of the building from the sides by means of wall mountedprofiles. The fixed wall is supported from the top edge by the brace bar installed in the corner and from the bottom corner by the fitting glued to the floor. There will be a 25mm gap between the panel and the floor of the fixed wall. A seal (standard part) may be installed between the panel and the floor in order to prevent water from flowing under the panel. A floor seal , which limits the flow of water, can be installed a floor seal , which restricts the flow of water. Installation guide
7 Working days
20 year warranty
The profiles mounted to the edges of the panel are manufactured of aluminium. The White (RAL 9016),Black (RAL 9005), Sand (RAL 1019), Mocha (RAL 8025) and Cocoa (RAL 8019) surface treatment options are manufactured by powder coating. Aluminium is an anodized profile color. Profiles are sandblasted before anodization, so that the surface is as smooth as possible and there will be no fingerprints. The fittings used in the product, like square foot and brace bars, are made of brass alloy and correspond with the chosen profile color. Painted profiles have painted fittings, Aluminium profiles have Chrome plated fittings.
The product is manufactured of 6mm thick tempered safety panel (EN 12150). The safety panel can be treated in the factory with Cranith calcification prevention coating. The coating enables the panel to stay clean easier. Clear, superclear, grey and bronze are smooth surfaced and transparent glasses. Chinchilla, satin, greysatin, brownsatin, superclear satin and reeded glasses are not fully transparent, details cannot be made out through the panel. Chinchilla and reeded are textured on one side and smooth on the other side. One side of the satin panel is etched to acquire a velvety feel and the other side is smooth. When choosing one of the satin panel products, bear in mind that the etched surface of the panel is sensitive to scratches and stains. Please note, that productpictures use the super clear satin image, standard satin may tint more into green
The size of the shower corner can be selected from among the standard sizes or it can be manufactured custom dimensions. The adjustment range of the wall mountedprofile of the fixed part is 20mm and that of the door, 15mm, respectively. The adjustment range can be used for levelling of any tilt of the building s walls or for extending the widths of the sides of the shower enclosure in relation to the provided standard dimensions. The widths of one or both sides can be further extended by 34 mm via the extension profile (optional accessory). The extension profile can be grooved, for example, for the inlet of the surface water pipes.
Product size
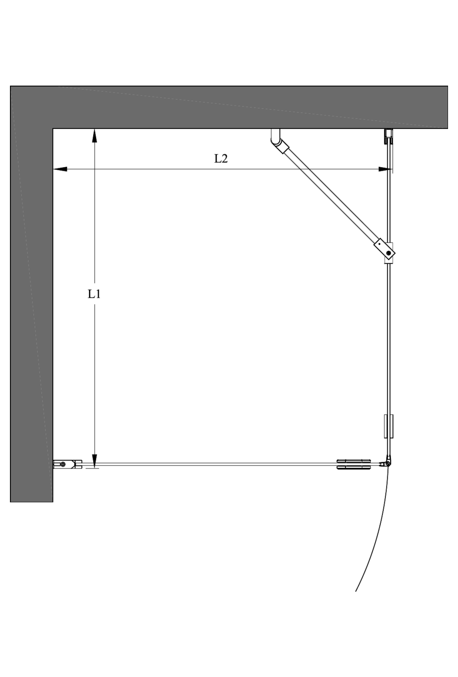
Taking into account the adjustment ranges, the installation dimensions of the selected combination are:
- Side L1 : 402mm - 422mm
- Side L2 : 407mm - 422mm
Installation dimensions mean the location of the outermost side of the wall mountedprofile on the building wall measured from the corner of the shower area. The width of the side of the wall mountedprofile placed against the building wall is 22mm. The dimensions may deviate from the declared values if the adjustment range must be used to level the tilt of the walls. Note! The parts of the shower enclosure may also be installed in the opposite direction than presented in the layout.:

The product is supplied as standard with a 33 mm high floor seal. The optional accessories are a 50 mm high floor seal for shower areas where the floor tilting is higher than normal. The length of the floor seal is 1000 mm and it is cut to a suitable length on site. The watertight quality of the product can be improved by installing a step profile under the door. The step profile is cut into a suitable length on the side and glued to the floor. The height of a shaped step profile is 10 mm and its width is 16 mm.
Please select handle model:
Product
Product code
Price
1
Forma 368
Product code
368-61-11
Price
0.00 €
2
Shower enclosure fixed screen
White/Transparent/L1=402 x 2025
Product code
301 61 0038
Price
345.00 €
3
Shower enclosure hinged door
White/Transparent/L2=407 x 2025
Product code
302 61 0038
Price
325.00 €
4
Magnet seal pair
Product code
F06 6L 0001
Price
21.00 €
5
Polished hole
Product code
Y57 RL MMMM
Price
0.00 €
6
Spring sale -25% 14.4.-17.5.2025
Product code
DISCOUNT
Price
-172.75 €
7
TOTAL
Product code
Price
518.25 €
Taking into account the adjustment ranges, the installation dimensions of the selected combination are:
- Side L1 : 402mm - 422mm
- Side L2 : 407mm - 422mm
Installation dimensions mean the location of the outermost side of the wall mountedprofile on the building wall measured from the corner of the shower area. The width of the side of the wall mountedprofile placed against the building wall is 22mm. The dimensions may deviate from the declared values if the adjustment range must be used to level the tilt of the walls. Note! The parts of the shower enclosure may also be installed in the opposite direction than presented in the layout.:
| EAN: |
|---|



