





Classic 411
Shower enclosure with fixed walls and sliding doors
The shower enclosure consists of two fixed walls and two sliding doors. The product is well-suited for a shower corner on the outside of which are fixtures on both sides and where the doors have no space to open to the outside or inside. The doors move behind the fixed walls, so that they would not require space for opening. The fixed walls and the doorway can be dimensioned so that the fixed walls protect the fixtures and the doorway occupies the width of the available space space. The doors slide behind the fixed parts supported by the bearing wheels installed into the top edge of the door. The bottom parts of the doors move in the guide groove of the lower slide rail. A magnet seal keeps the door tightly closed during showering. Doors are equipped with long profile handles of the height of the entire panel.
The shower enclosure is attached to the wall of the building from the sides by means of wall mountedprofiles. The product can be installed off the floor with the help of an adjustment leg, in order to allow water to flow under the slide rail. Alternatively, the flow of water can be prevented by installing a seal (standard part) under the slide rail. The adjustment leg and the seal (standard part) are standard equipment.Installation guide
25 Working days
5 year warranty
The profiles mounted to the edges of the panel are manufactured of aluminium. The White (RAL 9016) and the Black (RAL 9005) surface treating options are powder painteded. The Aluminium option is an anodized coating. Profiles are sandblasted before anodization, so that the surface is as smooth as possible and there will be no fingerprints.
The product is manufactured of 6mm thick tempered safety panel (EN 12150). The safety panel can be treated in the factory with Cranith calcification prevention coating. The coating enables the panel to stay clean easier. Clear and smoke are smooth surfaced and transparent panels Chinchilla and satin panel are not fully transparent, details cannot be made out through the panel. Chinchilla is textured on one side and smooth on the other side. One side of the satin panel is etched to acquire a velvety feel and the other side is smooth. When choosing a satin panel product, bear in mind that the etched surface of the panel is sensitive to scratches and stains. The satin glass may also tint in green, depending e.g. on the lighting in the space. Please contact customer service for a proposal of superbright satin glass if needed.
The size of the shower corner can be selected from the standard sizes or it can be manufactured based on special dimensions. The wall mountedprofiles have an adjustment tolerance 20mm. The adjustment tolerance may be used for levelling the tilt of the building s walls or for extending the widths of the sides of the shower enclosure in relation to the provided standard dimensions. The widths of one or both sides can be further extended by 34 mm via the extension profile (optional accessory). The extension profile can be grooved, for example, for the inlet of the surface water pipes. The fixed panel is mounted with tuning leg by default which is suitable for tilted floors in the case of even floor the floor mounted option can be selected. Please note that the mounting opening for Glisse products should be 25mm higher than the product itself.
Product size
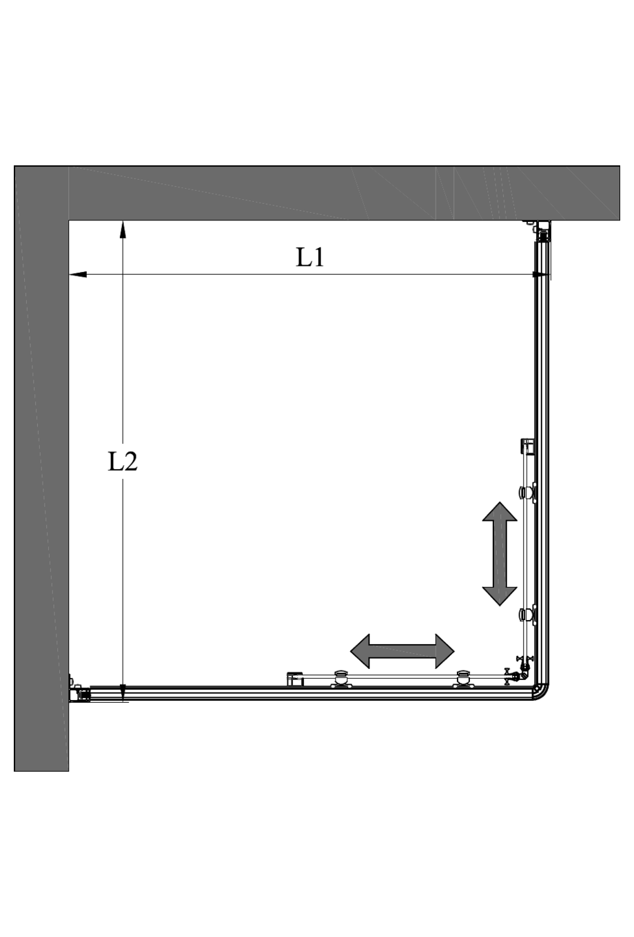
Taking into account the adjustment ranges, the installation dimensions of the selected combination are:
- Side L1 : 688mm - 708mm
- Side L2 : 688mm - 708mm
Installation dimensions mean the location of the outermost side of the wall mountedprofile on the building wall measured from the corner of the shower area. The width of the side of the wall mountedprofile placed against the building wall is 22mm. The dimensions may deviate from the declared values if the adjustment range must be used to level the tilt of the walls. Note! The parts of the shower enclosure may also be installed in the opposite direction than presented in the layout.:

Product
Product code
Price
1
Classic 411
Product code
411-61-11
Price
0.00 €
2
L1
White/Transparent=688 x 1947
Product code
402 61 0068
Price
414.00 €
3
L2
White/Transparent=688 x 1947
Product code
403 61 0068
Price
414.00 €
4
TOTAL
Product code
Price
828.00 €
Taking into account the adjustment ranges, the installation dimensions of the selected combination are:
- Side L1 : 688mm - 708mm
- Side L2 : 688mm - 708mm
Installation dimensions mean the location of the outermost side of the wall mountedprofile on the building wall measured from the corner of the shower area. The width of the side of the wall mountedprofile placed against the building wall is 22mm. The dimensions may deviate from the declared values if the adjustment range must be used to level the tilt of the walls. Note! The parts of the shower enclosure may also be installed in the opposite direction than presented in the layout.:
| EAN: |
|---|



