









Similar Products
Slidingdoor_FD.jpg
880_Handle.jpg
512x513_Round handle.jpg
512x513_Hex handle.jpg
678_91_Paris_Door handle.jpg
711x712_Handle.jpg
Vetro knob_black.jpg
Vetro_531 (511+512)_no handle.jpg
Assembly_instructions_Inne_C5N_C5P_C5T.pdf
Inne C5T Tokyo
Sliding door with soft closing mechanism and fixed wall
The sliding door with fixed panel glass wall consists of a fixed wall panel, and a sliding door, mounted to the ceiling.Sliding door fixture takes up very little space in the room, a quality sliding mechanism and a floor guide fitting provides a smooth and safe door movement.The doors are equiped with soft closing mechanism which cushions the closing and gently pulls the door into position.
The sliding rail profile is fixed to the ceiling.The sliding mechanism is affixed to the top of the door panel before being mounted on the sliding profile.The fixed wall panel is mounted to the top profile and a floor fitting profile. The fixed wall panels are mounted to the top profile and floor fitting profiles on each side of the enclosure.A door guide is installed on the floor.The sliding rail profile is covered from the front and sides with cover plates
20 Working days
20 year warranty
The white (RAL 9016), black (RAL 9005), Sand (RAL 1019), Mocha (RAL 8025) and Cocoa (RAL 8019) surface treatment options are manufactured by powder coating. The fittings used in the product, are made of painted brass alloy.
The product is manufactured of 6mm thick tempered safety panel (EN 12150). Transparent, super bright, grey and brown are smooth surfaced and transparent panels. Reeded and satin panels are not fully transparent, details cannot be made out through the panel. The reeded glass is smooth on one side and textured on the other. One side of the satin panel is etched to acquire a velvety feel and the other side is smooth. When choosing a satin panel product, bear in mind that the etched surface of the panel is sensitive to scratches and stains.
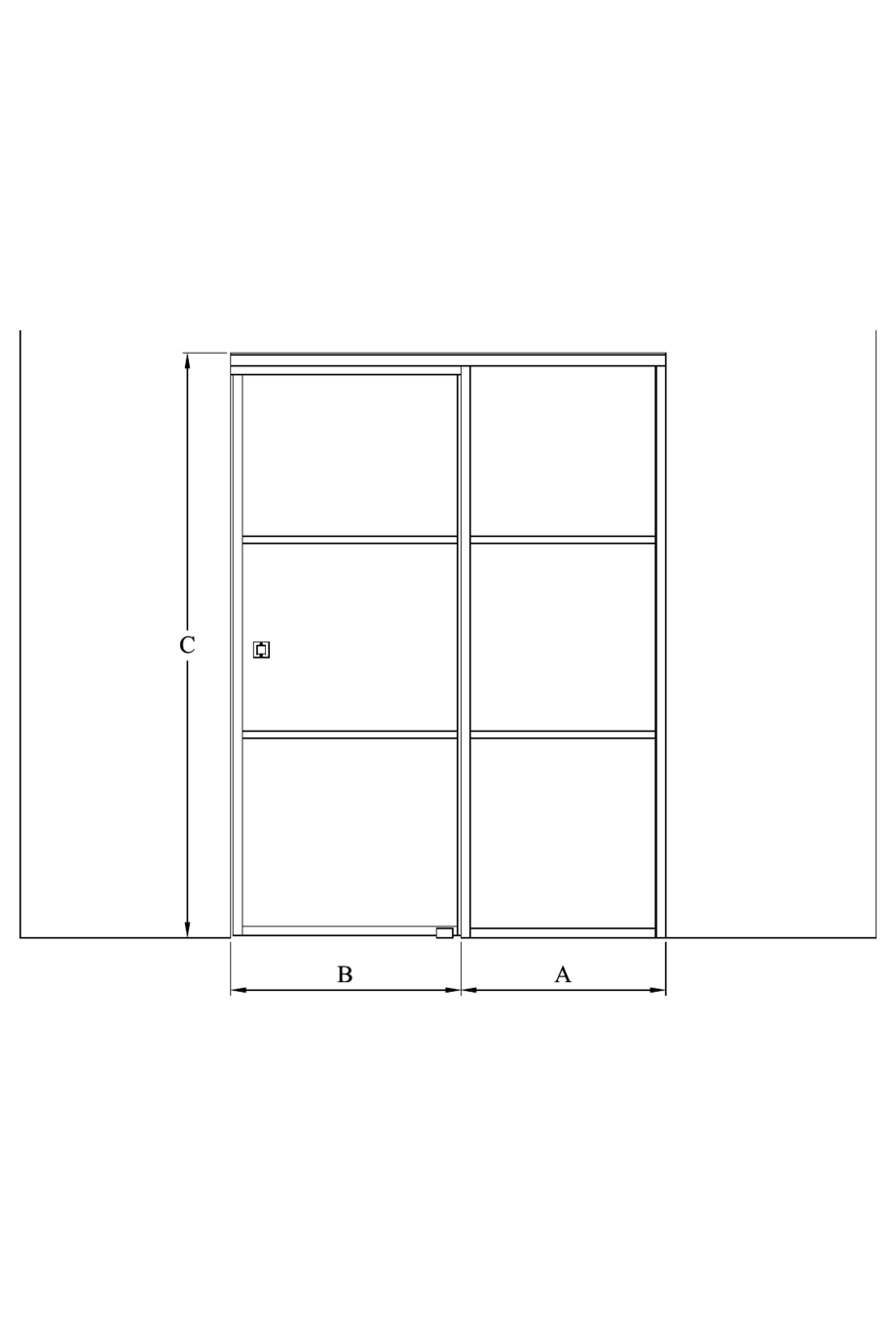
The unit is always manufactured according to custom dimensions. When selecting the size, enter the width of the opening and the height of the opening, entering the smallest measurements in the actual gap. When the width consists of more than one panel, all entered width measurements should add up to the total measurement of the actual gap at its narrowest. Depending on the installation, the free passage opening is at least 60mm smaller than the overall dimensions of the door.
Product size
.:

Select handle
Product
Product code
Price
1
Inne C5T Tokyo
Product code
C5T-61-00
Price
0.00 €
2
Fixed panel
White/Transparent=800 x 2100
Product code
764 61 0000
Price
410.00 €
3
Door
White/Transparent=785 x 2100
Product code
765 61 0000
Price
900.00 €
4
Tokyo -frame
Product code
702 6L 0000
Price
100.00 €
5
Tokyo -frame
Product code
702 6L 0000
Price
100.00 €
6
Spring sale -25% 14.4.-17.5.2025
Product code
DISCOUNT
Price
-377.50 €
7
TOTAL
Product code
Price
1132.50 €
.:
| EAN: |
|---|



