





Bläk 809 Shanghai
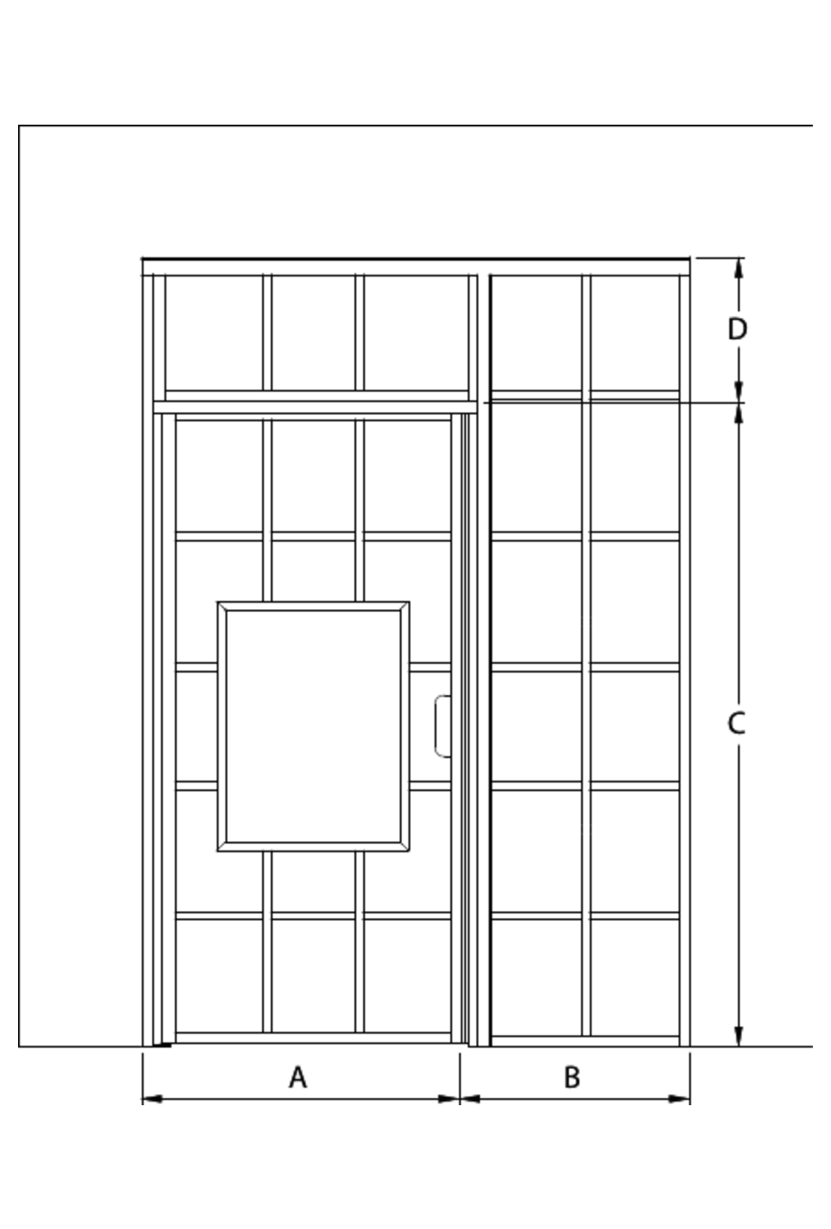
Glass wall with fixed panel on handle side and upper window
The glass wall configuration consists of a fixed panel, upper window and a door.
The door opens 90 degrees to the outside and is equipped with an adjustable centring. The function of the centering is to return the door to the open and closed positions.
The panels are mounted on building wall using wall mounting profiles on each side of the enclosure space. The panels and the upper window are secured with self-drilling screws. The top of the unit is secured to the ceiling by long profiles, covering the top of the unit and by a short profile, covering bottom window edge from one side(both sides). Magnet seals are installed on each of the doorway panels to keep the door tightly closed.
20 Working days
20 year warranty
The profiles mounted to the edges of the panel are manufactured of aluminium. The white (RAL 9016) and black (RAL 9005) surface treatment options are manufactured by powder coating.
The product is manufactured from a 6mm thick clear tempered safety panel (EN 12150).
Glass wall is manufactured according to custom dimensions. The wallmounting profiles have the total of 22mm adjustment tolerance. The adjustment tolerance can be used for levelling any tilt in the building s walls as well as for accommodating the alcove fitting into the installation opening. Door opening is 131mm smaller than indicated total door measure .
Product size
The selected product can be installed into the opening the total width L1 of which is 1000mm and the total length L2 2400mm.:

Product
Product code
Price
1
Bläk 809 Shanghai
Product code
809-61-000
Price
0.00 €
2
Door
White/Transparent=441 x 2000
Product code
736 61 0000
Price
460.00 €
3
Hinge side panel
White/Transparent=500 x 2400
Product code
737 61 0000
Price
400.00 €
4
Upper window
White/Transparent=490 x 400
Product code
739 61 0000
Price
210.00 €
5
Door and upper window mounting kit
White/Transparent=10 x 2400
Product code
725 61 0000
Price
0.00 €
6
Broad ceiling list
=10 x 1000
Product code
710 RL 0000
Price
0.00 €
7
Maintenance guide
=
Product code
059 RL MMMM
Price
0.00 €
8
Magnet locking
Product code
727 6L MMMM
Price
0.00 €
9
Shanghai-frame
Product code
741 6L 0000
Price
800.00 €
10
Paris -grid
Product code
703 6L 0000
Price
200.00 €
11
Paris-frame
Product code
703 6L 0000
Price
200.00 €
12
Spring sale -25% 14.4.-17.5.2025
Product code
DISCOUNT
Price
-567.50 €
13
TOTAL
Product code
Price
1702.50 €
The selected product can be installed into the opening the total width L1 of which is 1000mm and the total length L2 2400mm.:
| EAN: |
|---|



