Bläk 728 Tokyo
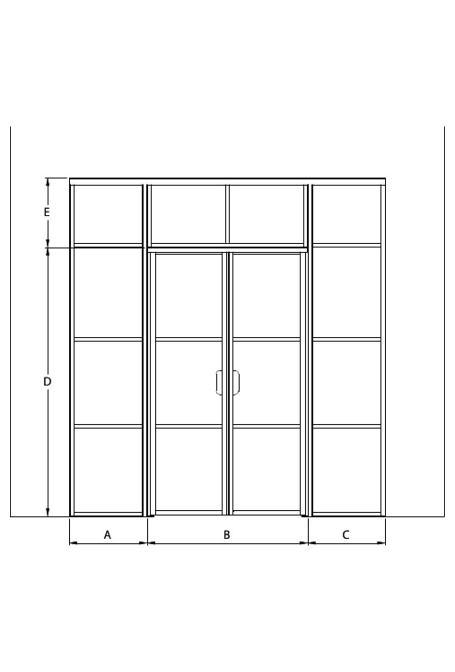
Glass wall with fixed panels on hinge and handle side, a double door and upper window
The glass wall configuration consists of two fixed walls with hinged doors and an upper window.
Doors open 90 degrees to the outside and are equipped with an adjustable centring. The function of the centering is to return the door to the open and closed positions.
The wall panels are mounted to the building wall on each side of the enclosure using wall mounting profiles and floor fitting profiles. The door panels are attached to the wall fixed panels from both sides. The panels and the upper window are secured with self-drilling screws. Magnet seals are installed on each of the doorway panels to keep the door tightly closed.
17 Working days
20 year warranty
The white (RAL 9016), black (RAL 9005), Sand (RAL 1019), Mocha (RAL 8025) and Cocoa (RAL 8019) surface treatment options are manufactured by powder coating. The fittings used in the product, are made of painted brass alloy.
The product is manufactured from a 6mm thick clear tempered safety panel (EN 12150).
Glass wall is manufactured according to custom dimensions. The wallmounting profiles have the total of 14mm adjustment tolerance. The adjustment tolerance can be used for levelling any tilt in the building s walls as well as for accommodating the alcove fitting into the installation opening. Door opening is 108mm smaller than indicated total door measure .
Product size
The selected product can be installed into the opening the total width L1 of which is 2000mm and the total length L2 2400mm.:

Product
Product code
Price
1
Bläk 728 Tokyo
Product code
728-61-0000
Price
0.00 €
2
Hinge side panel
White/Transparent=500 x 2400
Product code
737 61 0000
Price
400.00 €
3
Door
White/Transparent=488 x 2000
Product code
736 61 0000
Price
460.00 €
4
Door
White/Transparent=488 x 2000
Product code
736 61 0000
Price
460.00 €
5
Hinge side panel
White/Transparent=500 x 2400
Product code
737 61 0000
Price
400.00 €
6
Upper window
White/Transparent=1000 x 400
Product code
735 61 0000
Price
230.00 €
7
Broad ceiling list
White/=10 x 2000
Product code
778 6L 0000
Price
0.00 €
8
Tokyo -frame
Product code
702 6L 0000
Price
100.00 €
9
Magnet locking
Product code
726 RL MMMM
Price
0.00 €
10
Tokyo -frame
Product code
702 6L 0000
Price
100.00 €
11
Tokyo -frame
Product code
702 6L 0000
Price
100.00 €
12
Tokyo -frame
Product code
702 6L 0000
Price
100.00 €
13
Tokyo -frame
Product code
702 6L 0000
Price
100.00 €
14
Spring sale -25% 14.4.-17.5.2025
Product code
DISCOUNT
Price
-612.50 €
15
TOTAL
Product code
Price
1837.50 €
The selected product can be installed into the opening the total width L1 of which is 2000mm and the total length L2 2400mm.:
| EAN: |
|---|








