















Similar Products
538.pdf
Vetro folding hinge.jpg
Vetro_glass_clamp.jpg
G2W clamp.jpg
hinge (door to glass).jpg
Vetro door hinge.jpg
Shower rod.jpg
Square_handle.jpg
Round_handle.png
Hexagonal_handle.png
Polished_cutout_handle.jpg
Vetro_514_SRmeasure.png
Long_shower_rod.png
Vetro 538 (513+514)
Alcove fitting with a folding door and a hinged door with a fixed part
The alcove fixture consists of a folding door and a fixed wall into which another hinged door has been attached. The product is well-suited for a shower enclosure next to which are fixtures and where the door may not have enough space to properly open to both sides. The folding door does not require space for opening outside the shower area; instead, the door folds inside the shower area so that the door panels fold into a small space against the wall of the building. Fixed wall and doorway can be dimensioned so that the fixed wall protects the fixtures and the doorway occupies the width of the available space. The doors can be dimensioned symmetrically or so that the doors are of different sizes. When the shower is not in use the doors can be positioned parallel to the building walls.
Doors rotate 90 degrees in both directionsand are equipped with adjustable centring. The centring attempts to return the door back to the open and closed positions. In addition the outer panel of the folding door rotates 180 degrees in relation to the inner panel so that the panels fold against each other inside of the shower area. A magnet seal keeps the door tightly closed during showering.
The fixed wall and the folding door are attached to the walls of the building from the sides by means of wall mountedfittings and hinges. The fixed wall is supported from the top edge by a brace installed in the corner and from the bottom edge by a fitting glued to the floor. Between the panel of the fixed wall and the floor will be a 25mm high gap. Between the panel and the floor may be installed a seal (standard part) in order to prevent water from passing through under the panel. Floor seals (standards equipment) can be installed at the bottom edges of the door panels, which will restrict the flow of water. Installation guide
7 Working days
20 year warranty
The fittings used in the product are manufactured of brass alloy. Surface treatment options are Chrome plated, Brushed, Brass, White (RAL 9016), Black (RAL 9005), Sand (RAL 1019), Mocha (RAL 8025) and Cocoa (RAL 8019). Chrome and Brass are shiny surface treatments, brushed fittings are brushed matte, White, Black, Sand, Mocha and Cocoa fittings are painted.
The product is manufactured of 8 mm thick tempered safety panel (EN 12150). Glassoptions are Transparent, grey, brown, satin, super bright and black. One side of the satin glasses is etched to acquire a velvety feel and the other side is smooth. When choosing a satin glass product, bear in mind that the etched surface of the panel is sensitive to scratches and stains. The black glass is slightly see through in heavy light and almost nontransparent if the space is darker. The super bright glasses are manufactured with the iron removed, thus removing most of the green tint that glasses naturally have. Please note, that productpictures of satin glass use super bright satin of which an offer can be calculated via our customer srevice. All glasses can be treated in the factory with a Cranith calcification prevention coating. The coating enables the panel to stay clean easier.
The size of the alcove fitting can be selected from the standard sizes or it can be manufactured using custom dimensions.
Product size
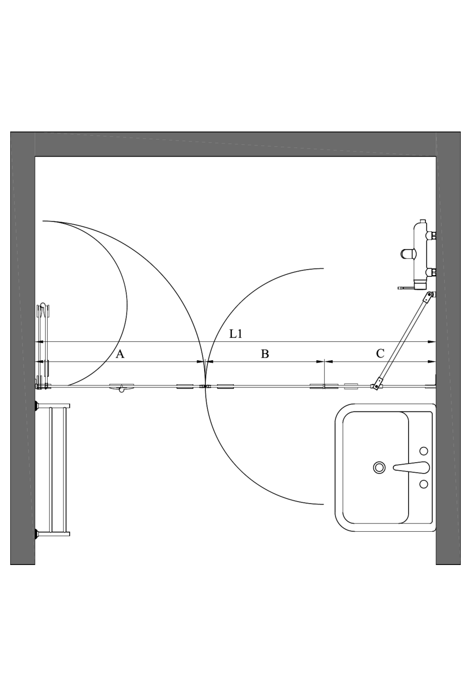
The selected combination can be installed into the opening (L1) the width of which is: 1390mm.
The product does not include width adjustment options, therefore wall mountedsurfaces should be as straight as possible.:

The product is supplied as standard with a 28mm high floor seal. The optional accessories are a 50mm high floor seal for shower areas where the floor tilting is higher than normal. The length of the floor seal is 1000mm and it is cut to a suitable length on site. The watertight quality of the product can be improved by installing a step profile under the door. The step profile is cut into a suitable length on the side and glued to the floor. The height of a shaped step profile is 10mm and its width is 16mm. An extension step can be placed under the glass clamp to raise it by 10mm.
Choose handle
The middle hinges of the folding door have handedness. When ordering, you must choose whether the folding door is to be installed to the left or the right side when viewed from outside of the shower area. Changing handedness afterwards requires changing the middle hinges initially installed in the factory with others.
Product
Product code
Price
1
Vetro 538 (513+514)
Product code
538-21-242
Price
0.00 €
2
Alcove folding door
Chrome/Transparent/A=696 x 2000
Product code
513 21 0068
Price
590.00 €
3
Alcove hinged door
Chrome/Transparent/B=389 x 2000
Product code
514 21 1038
Price
390.00 €
4
Alcove fixed screen
Chrome/Transparent/C=305 x 2000
Product code
514 21 0030
Price
390.00 €
5
Magnet seal pair
Product code
915 2L 0002
Price
42.00 €
6
Left
Product code
961 RL MMMM
Price
0.00 €
7
Round handle
Product code
Y45 2L MMMM
Price
27.00 €
8
Round handle
Product code
Y45 2L MMMM
Price
27.00 €
9
TOTAL
Product code
Price
1466.00 €
The selected combination can be installed into the opening (L1) the width of which is: 1390mm.
The product does not include width adjustment options, therefore wall mountedsurfaces should be as straight as possible.:
| EAN: |
|---|



