






Infinia 239 (211+214)
Alcove fitting with a fixed wall and hinged door which has a fixed part
The Alcove fitting configuration consists of two fixed walls one of which has a hinged door. The product is well-suited for a shower enclosure with fixtures on both sides. Fixed walls can be dimensioned according to the depth of the fixtures, so that when opened the door does not hit the fixtures.
The door opens 90 degrees to the outside and is equipped with an adjustable centring. The function of the centring is to return the door to the open and closed positions. A pair of magnet handles keeps the door tightly closed while showering.
Fixed walls are attached from the sides to the walls of the building by means of wall mountedand supported from the top edge by the brace bars installed in the corners as well as from the bottom edge by the fitting glued to the floor. There is a gap of 25 mm between the panel of the fixed walls and the floor. seal (standard part)s may be installed between the panel and the Floor, in order to prevent water from flowing under the panel. At the bottom edge of the door panel can be installed along the bottom edge of the door panel. Installation guide
7 Working days
20 year warranty
The profiles mounted to the edges of the panel are manufactured of aluminium. The white (RAL 9016) and black (RAL 9005) surface treatment options are manufactured by powder coating. Aluminium is an anodized coating. Profiles are sandblasted before anodization, so that the surface is as smooth as possible and there will be no fingerprints. The fittings used in the product, like square foot and brace bars, are made of brass alloy and correspond with the chosen profile color. White and black profiles have white or black painted fittings, aluminium profiles have chrome plated fittings.
The product is manufactured of 6mm thick tempered safety panel (EN 12150). The safety panel can be treated in the factory with Cranith calcification prevention coating. The coating enables the panel to stay clean easier. Clear and smoke are smooth surfaced and transparent panels Chinchilla and satin panel are not fully transparent, details cannot be made out through the panel. Chinchilla is textured on one side and smooth on the other side. One side of the satin panel is etched to acquire a velvety feel and the other side is smooth. When choosing a satin panel product, bear in mind that the etched surface of the panel is sensitive to scratches and stains. The satin glass may also tint in green, depending e.g. on the lighting in the space. Please contact customer service for a proposal of superbright satin glass if needed.
The size of the alcove fitting can be selected from the standard sizes or it can be manufactured using custom dimensions. The wall mounted profiles have the total of 40mm adjustment tolerance The adjustment tolerance can be used for levelling any tilt in the building s walls as well as for accommodating the alcove fitting into the installation opening. For the purposes of accommodating the fitting into the opening, one or more extension profiles (optional accessory). One extension profile extends the width of the alcove fitting by 34mm and it can be grooved for example for the inlet of the surface water pipes.
Product size
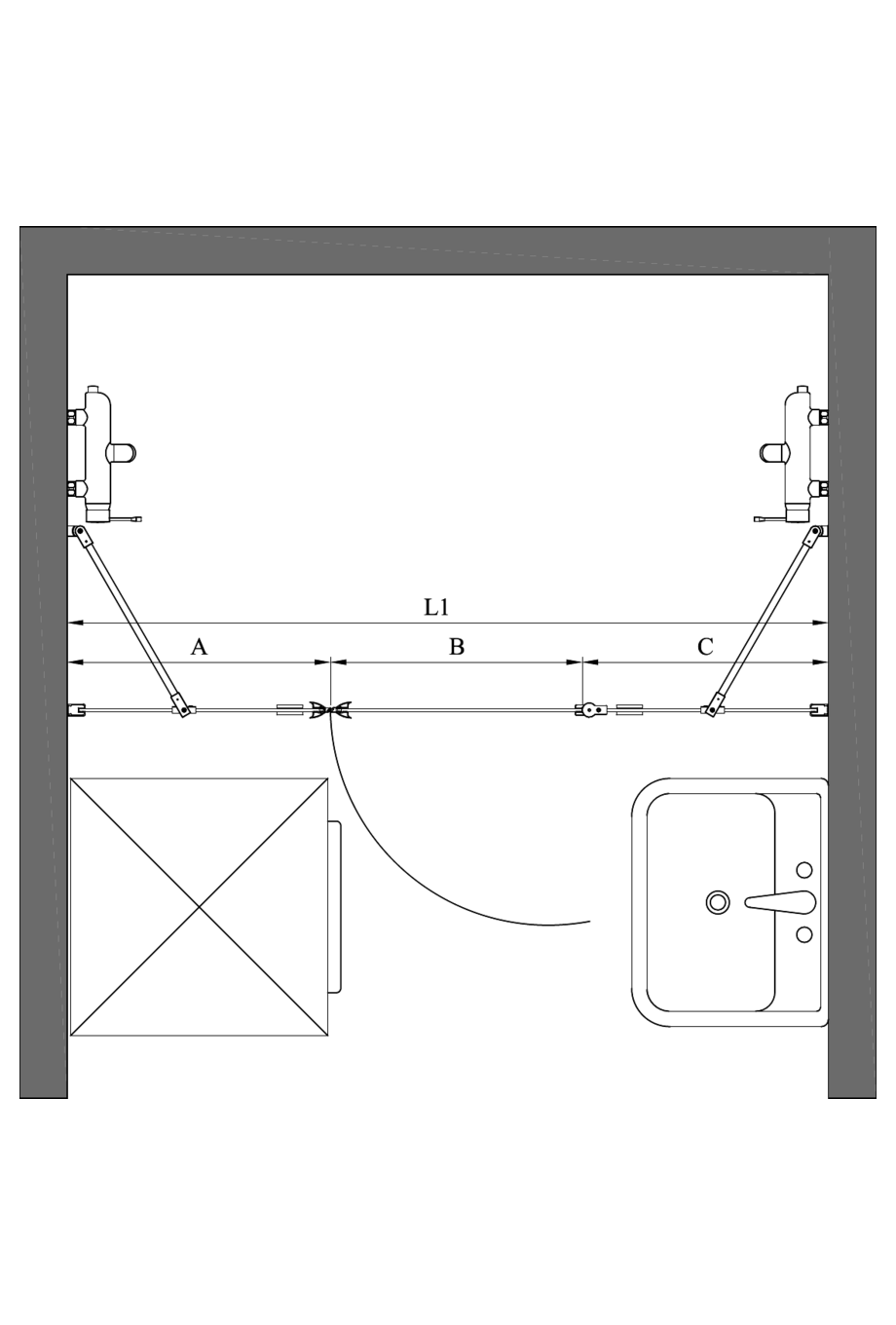
The selected combination can be installed into the opening (L1) the width of which is:
- At is narrowest: 749mm
- At its widest: 789mm
Dimensions may deviate from the declared values if adjustment tolerance must be used to level the tilt of the building s walls. Note! The parts of the combination can also be installed in the direction opposite to the direction shown in the layout.:

The product is supplied as standard with a 28mm high floor seal. The optional accessories are a 50mm high floor seal for shower areas where the floor tilting is higher than normal. The length of the floor seal is 1000mm and it is cut to a suitable length on site. The watertight quality of the product can be improved by installing a step profile under the door. The step profile is cut into a suitable length on the side and glued to the floor. The height of a shaped step profile is 10mm and its width is 16mm. An extension step can be placed under the glass clamp to raise it by 10mm.
Product
Product code
Price
1
Infinia 239 (211+214)
Product code
239-61-231
Price
0.00 €
2
Alcove fixed screen
White/Transparent/A=253 x 1900
Product code
211 61 0023
Price
345.00 €
3
Alcove hinged door
White/Transparent/B=279 x 1900
Product code
214 61 1025
Price
325.00 €
4
Alcove fixed screen
White/Transparent/C=217 x 1900
Product code
214 61 0022
Price
345.00 €
5
Magnet handle
Product code
913 6L 0002
Price
42.00 €
6
Magnet handle
Product code
913 6L 1003
Price
42.00 €
7
Spring sale -25% 14.4.-17.5.2025
Product code
DISCOUNT
Price
-274.75 €
8
TOTAL
Product code
Price
824.25 €
The selected combination can be installed into the opening (L1) the width of which is:
- At is narrowest: 749mm
- At its widest: 789mm
Dimensions may deviate from the declared values if adjustment tolerance must be used to level the tilt of the building s walls. Note! The parts of the combination can also be installed in the direction opposite to the direction shown in the layout.:
| EAN: |
|---|



